李茫茫
安科瑞電氣股份有限公司 上海嘉定 201801
【摘要】目前高校正在推進和深化節約型校園的建設,本文針對廣州鐵路職業技術學院公共機房能源浪費比較嚴重的問題,提出一種基于 KNX 總線的智能控制系統解決方案,通過總線智能控制技術,對機房的照明、空調、教學電腦進行管理和監控,避免能源浪費現象的發生。實踐證明,系統節能效果好、穩定可靠、操作方便,有效地提高了學院公共機房的管理水平。
【關鍵詞】KNX 總線;智能控制系統;高校計算機房;場景模式
0 引 言
近年來,國家大力推進節能減排工作,節約資源成為我國的基本國策。但目前大學生的平均能耗指標明顯高于全國居民的平均能耗指標,據統計,全國高校大學生生均能耗是全國居民人均能耗的4倍。教育部發(2009)163號文件指出:高等學校是公共機構的重要組成部分,要建立高等學校校園節能工作的長久機制,推進和深化節約型校園的建設。高校想做好節能工作,除了做好師生宣傳教育工作外,提高能源管理水平、使用智能控制的技術節能手段等也是行之有效的方法。
大學校園建筑分布范圍廣,教室、專業實訓室多,學生上課流動性大,使用傳統節能管理辦法需要耗費大量人力。以廣州鐵路職業技術學院(以下簡稱廣鐵學院)的計算機公共機房管理為例,該校目前擁有計算機公共機房18間、計算機1000多臺,分布在兩棟實訓樓中,但是配置的實訓管理員只有3名。機房承擔全院的計算機應用基礎教學工作和不同專業的實訓教學工作,每天上課和上機的學生達到2000多人次。由于管理人員較少,機房長期存在嚴重的能源浪費現象:機房長時間無人使用時,電腦、空調、照明等仍然處于打開狀態;上課時照度足夠卻照樣開燈;空調和窗戶同時打開等等。針對機房能源浪費現象,學院采用了一種基于KNX總線技術的節能控制系統設計方案。KNX是一種基于事件控制的分布式總線系統,所有的控制信號都是通過一根雙芯控制電纜進行傳輸的,線路與配電完全分開。該系統可以實現智能燈光控制、智能窗簾管理、智能新風、智能電腦控制、智能安防管理、智能視頻監控等功能,能夠達到智能節能控制的目的。
1 KNX 總線技術的特點
KNX是家居和樓宇控制領域開放式國際標準,是由歐洲三大總線協議EIB、BatiBus和EHS合并發展而來,已被批準為歐洲標準、國際標準、美國標準和中國指導性標準。通過KNX總線系統,可以實現對家居和樓宇的照明、遮光/百葉窗、安防系統、能源管理、供暖、通風、空調系統、信號和監控系統、服務界面及樓宇控制系統、遠程控制、計量、視頻/音頻控制、大型家電等的控制。
1.1 傳輸技術的特點
KNX/EIB是一個基于事件控制的分布式總線系統,數據傳輸和總線裝置的電源共用一條電纜,把通訊信號耦合在24V 系統電源上,采用弱電載波方式,用弱電控制強電。操作安全、結構簡單。
1.2 拓撲結構
KNX系統采用分層結構,分域(Area)和線路(Line),線路是KNX系統的更小結構單元。每個線路至多包括4個線段(Line Segment),每個線段至多可連接64臺設備,每個設備都有一個物理地址。一般情況下,可以有15個線如果有多個域存在時,每個域需要通過主干耦合器(BK)與干線路相連接。一個系統最多包括15個域,這樣理論上一個KNX系統可以連接58000多臺總線設備。KNX拓撲結構如圖 1 所示。

1.3高兼容性、高擴展性和設備可替換性
KNX標準的優勢在于不同性能、不同廠家生產的產品可以實現互操作;產品通過了嚴格的質量控制和第三方KNX認證,質量非常可靠;KNX標準功能豐富,適用于各種類型的建筑物;通信介質多樣,可以用雙絞線、電力線和無線實現通信;可以采用多種系統配置模式。
2 計算機房 KNX 智能控制系統方案設計
2.1 系統需求
廣鐵學校機房設備的傳統控制方式基于開關觸點的接通與斷開來控制,但機房管理人員有限,很多設備控制不合理、不到位,很難達到節能效果。機房智能控制系統總體設計應該達到以下要求:
(1)機房區域內采用分布式智能控制方式,開關、調光、窗簾、空調模塊均配有處理器,可以不依賴其他元件而獨立工作。
(2)需能實現燈光的智能開啟和人工控制,以及分散集中控制、遠程控制、延時控制、定時控制等多種控制方式;實現空調、上課電腦的智能開啟/關閉和人工控制。
(3)照明控制系統在滿足各個機房使用需求及舒適度要求的基礎上,應充分考慮結合自然光的明暗自動調節照度,達到節能目的。
(4)系統擁有良好的擴展性,將需增加的元件直接掛接在總線上,即可實現功能或回路的擴展。
(5)各系統元件均有獨立的CPU及地址,可通過巡檢功能監視系統內元件運行是否正常,如總線或元件出現故障、斷線,可及時反饋給智能主機。路分別經過線路耦合器(LK)與主線路相連接,組成一個域。
(6)建立Web監控管理系統和手機操作APP,實現不同權限的操作管理,可集中控制和遠程操作,降低運行成本。
2.2 系統框架設計
廣鐵學院計算機房KNX總線系統是通過一條總線將兩棟實訓樓的四層樓共18間計算機房所有的KNX設備連接起來,各個設備既可獨立工作,又可通過中控電腦進行集中監視與控制。KNX設備通過電腦編程獨立完成諸如開關、調光、控制、監視等工作,根據要求進行不同的場景設置(如:全開模式、全關模式、清潔模式、投影模式等),實現對多個設備的聯動控制。
總線上設備元件分為三類:
(1)系統元件。負責整個KNX總線網絡系統的運行, 如KNX總線電源、KNX/IP網關、線路耦合器等。
(2)傳感器。負責監控機房內的開關操作或光照度、溫度、濕度、煙霧等信號變化,如光照度傳感器、紅外線傳感器。
(3)執行器。負責接收傳感器發出的信號并執行相應的操作,如調節燈光,控制窗簾、空調等。
系統架構圖如圖 2 所示。
安裝在機房的傳感器監視感知現場的光照度、溫度、煙霧濃度和人體存在感應,并通過KNX總線將數據反饋給中控主機模塊,主機模塊將接收的信號與預先設定的正常值范圍進行比較,以判斷執行哪些操作,將相應的控制信號通過總線發送給執行器,如:窗簾控制模塊接收到的光照度信號值超過預設照度,窗簾執行器對機房窗簾執行升/降/停/百葉角度調整。

2.3 系統實現
2.3.1 模塊選型和組網
計算機房KNX總線智能控制系統主要由電源供給模塊、IP接口模塊、線路耦合器模塊、開關調光執行模塊、窗簾執行模塊、空調遠程控制網關、APP智能控制網關和若干觸摸屏、開關面板、傳感器等組成,系統采用廣州樂原智能科技有限公司的KNX總線智能產品。所有模塊及系統元件均為模塊化產品,采用標準35mm導軌安裝方式,安裝在專用的智能控制箱內。
系統的組網采用支干線模式,一層樓一根干線(域),每個房間鋪設若干支線(線路),模塊至設備間采用兩芯1.5mm2的KNX/EIB總線控制線纜,總線和電源線分開穿管敷設。總線通過分布在各個機房的傳感器(包括光照度傳感器、溫濕度傳感器、人體存在傳感器、紅外線傳感器、煙霧傳感器)實時采集數據,并通過總線把信號傳輸到相應模塊。
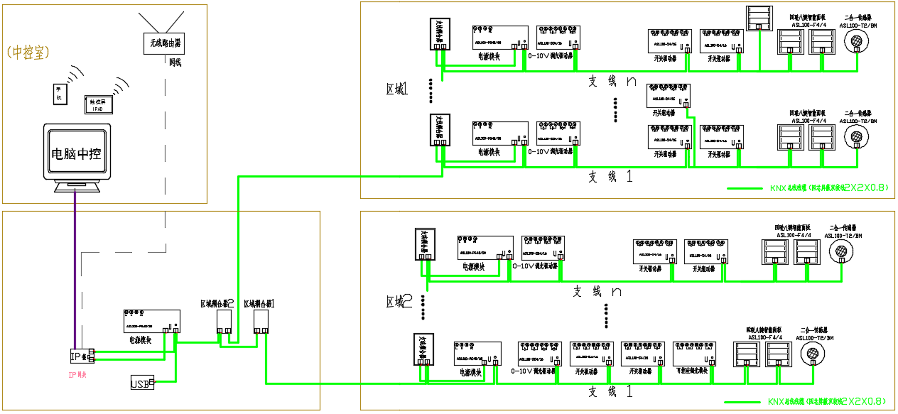
一個機房配置4路14A調光模塊1個,每個調光模塊所能控制的燈具數量不超過64個;一層樓配置12路16A開關模塊2個、14路窗簾控制模塊1個;一棟實訓樓配置空調遠程控制網關1個、APP智能控制網關1個;每個機房的連接總線配置線路耦合器 1個,每層樓的連接總線配置主干耦合器1個;每個機房配置多聯智能開關面板1個,每層樓配置3.5寸智能控制面板1個,可實現手動控制、分散/集中控制和場景控制。系統配置IP接口模塊1個,通過雙絞線連接路由器,實現KNX系統與Internet的互聯,可實現計算機集中控制和手機APP遠程控制。控制系統網絡拓撲圖如圖3所示。

2.3.2 軟件設計
在硬件設計完成的基礎上,根據需求對智能控制模塊進行軟件編程。KNX模塊編程可用ETS5編程實現。項目需要導入相應產品模塊的數據庫,數據庫由模塊廠商提供;通過在ETS5軟件里建立項目,為每個機房建立新支線,在相應支線里加入各個功能元件,設置每個元件的物理地址;根據功能的不同設置組地址,功能相同的對象組地址相同,傳感器同一功能只能有一個組地址,執行器組地址根據控制功能的不同可以劃分多個組地址。建立好群組地址后把相應元件進行關聯,以一號機房為例,控制要求和關聯設置如表2所示。關聯了相同的組地址的元件就可以進行通訊,操作面板發出指令,執行器執行命令。關聯結束后把程序下載到模塊。上述編程設計只是針對開關、調光、窗簾進行的關聯設置,針對場景模式的設計編程采用類似方法。
2.3.3 控制模式
機房設備控制包括分散集中控制、場景控制、智能感光控制、定時控制、遠程控制等多種控制方式。
分散/集中控制:可以每個機房分散控制,也可以通過智能面板集中控制。每層設置智能控制面板、場景面板、多聯智能開關,通過智能按鍵面板可以很方便地控制所有燈光的開/關、亮度調節、空調開/關、窗簾升/降/停/百葉角度調整。
場景控制:分四類場景,全開模式打開機房所有燈光、空調和插座開關;全關模式關閉所有燈光、空調和插座開關;投影模式關閉窗簾和部分燈光回路,保證投影清晰顯示;清潔模式打開窗簾和部分燈光回路,保證基本照明。具體如表3 所示。
智能感光控制:通過光感應控制百葉窗簾和采光較好部位的燈光,在自然光線照度足夠的情況下關閉照明,更大限度節能。通過人體存在感應控制的方式,長時間無人情況下,自動關閉照明、空調和計算機,做到有人時開燈,無人時延時關燈。
定時控制:系統自動按照預設的運行時間完成燈光、空調的控制,滿足上課、下課時間段對燈光照度的要求。通過定時功能確保在非正常工作時間內的更小能源消耗。
遠程控制:通過Internet遠程控制,有管理員權限即可登錄Web管理系統或手機APP,遠程控制設備的開/關。
表 3 燈光控制統計

2.3.4 WinSwitch中控系統集中監控
系統采用WinSwitch監控軟件,實現對機房元件的實時管理和遠程操控。WinSwitch采用標準的圖形圖像界面進行操作,可插入樓層、房間、元器件的平面圖,操作簡單直觀。 圖4為WinSwitch 的監控界面,界面設置了各組燈光開關、空調開關、窗簾控制開關、機房電腦總開關,可對現場設備實施遠程控制;控制系統面板和執行器的控制狀態可通過KNX總線實時反饋到監控界面,監控界面的控制命令通過總線傳輸到驅動器,執行相應的操作。可通過中控系統檢查設備是否運行正常,判斷總線是否工作正常、執行器是否正常及回路斷路器是否處于打開的狀態,如出現故障,能夠有效判斷故障原因。

3 安科瑞智能照明控制系統
3.1系統簡介
Acrel-BUS智能照明控制系統,是基于KNX總線技術設計的控制系統。KNX總線技術起源于歐洲,是在EIB,Batibus和EHS這三種住宅和樓宇的總線控制技術上發展起來的,其中EIB(European Installation Bus,歐洲安裝總線)是該總線技術的主體。
Acrel-BUS智能照明控制系統采用標準的2*2*0.8EIB BUS總線(即KNX總線)作為總線線纜,將所有的智能照明控制模塊連接到一起并組成一套完整的控制系統,既可實現照明燈具的遠程集中控制,又可實現就近控制功能。該系統理論可連接控制模塊數量達580000多個。
安科瑞智能照明產品種類齊全,方案完善。用戶可通過控制面板、人體感應、照度感應、微波感應、上位機系統、觸摸屏、手機、平板端等多種控制終端實現靈活多樣的智能控制,特別適合于各類智能小區、醫院、學校、酒店,以及體育場所、機場、隧道、車站等大型公建項目的照明系統。
3.2系統工作原理示意圖

3.3產品選型
3.3.1開關驅動器
用于對設備進行開關控制的驅動器,具有延時、預設、邏輯控制、場景、閾值開關等功能,電氣參數如下:

3.3.2調光驅動器
2路0-10V調光器,可對每路進行回路開關控制并輸出0-10V調光信號對具有0-10V調光接口的燈具進行調光,具有開關、場景、狀態反饋等功能,電氣參數如下:
3.3.3傳感器
傳感器是一種能感受外界信號、物理條件(如光、移動)的設備裝置,并將感應的信息傳遞給其它設備裝置(如調光器、開關驅動器),電氣參數如下:
3.3.4總線電源
KNX/EIB系統標準供電電源,為總線提供電壓640mA 輸出電流,至多可以為 64 個設備供電,帶總線復位、 過流指示和短路保護。標準導軌安裝,電氣參數如下:
3.3.5智能面板
用于接受按鍵觸動信號,可通過區分短按與長按并結合不同參數配置實現開關、調光、場景、窗簾控制、調溫、報警等功能,電氣參數如下:
3.3.6干接點輸入模塊
用于接受外部干接點信號輸入,可通過不同參數配置實現開關、調光、場景、窗簾控制、調溫、報警等功能,電氣參數如下:
3.4系統功能
(1)光照度(需要配照度傳感器)監測,對利用自然光照明區域,根據自然光照度變化,進行照明控制和調節,滿足照明和節能要求;
(2)公共區域、走廊、通道、門廳、電梯廳等的照明,應設置紅外或微波類人體感應器,并結合智能控制面板,實現各種場景照明控制,盡可能較少燈具點亮時間;
(3)樓梯間照明采用人體感應探測控制;
(4)設備房、設備房走道采用分組就地控制;
(5)室外路燈、景觀等照明采用光照度控制結合時控的集中控制方式;
(6)監控系統界面友好,畫面美觀,實時顯示各區照明工作狀態;
(7)應具有完善的用戶權限管理功能,避免越權操作;
3.5系統應用領域

3.6系統的控制優勢
(1)系統可通過、觸摸屏、電腦對現場的燈光、空調及窗簾等進行遠程集中控制,使得控制更加方便智能,用戶體驗更好;
(2)系統中控制模塊均工作在直流30V安全電壓下,用戶操作更加安全、舒適;
(3)系統在實施過程中,充分結合自然光及人員的活動規律來自動控制燈光,減少能源消耗,達到很好的節能效果;
(4)系統采用分布分布式KNX總線結構,搭建簡單靈活,系統內各模塊互不影響,可獨立工作,可靠性更高;
(5)多種控制方式可供選擇,如本地控制,自動感應控制,定時控制,場景控制和集中控制等,控制方式更靈活;
(6)系統的自動控制、遠程集中控制等功能,在實現自動化的同時,大量減少了值班人員,提高了管理水平和工作效果;
(7)升級系統內控制模塊或更改系統功能時,無需增加連接線,不需關閉整個系統,只需更改設備參數即可實現,維護方便,操作簡單;
(8)系統可與消防系統聯動,在出現消防報警時,強制打開應急回路,方便人員疏散,從而降低了人員傷亡的風險,提高了建筑的安全性。
3.7安科瑞組網方案
智能照明控制系統組網方式靈活,擴展方便,當系統模塊數量較少、距離較近、范圍較小時,各設備以樹形枝狀延伸,構成支路系統智能照明控制系統;當系統模塊數量較多、距離較遠、范圍較大時,用支線耦合器組成多條支路,構成區域智能照明控制系統;當系統模塊數量很多、距離很遠、范圍很大時,用支線耦合器、區域耦合器等構成樓群智能照明控制系統。
4 結 語
廣鐵學院從2017年采用KNX總線控制系統管理公共計算機房,比傳統的機房管理方式節約了20%~30%的電能,管理方式先進,節約了人力,避免了能源的浪費,降低了相關費用的支出。KNX總線技術可延長設備使用壽命,機房的照明燈具較往年的損耗率明顯降低。實踐證明,KNX總線系統穩定、操作方便、擴展性好、節能效果好,達到預期目標,提高了學院公共機房的管理水平。目前由于國內引進KNX核心技術的費用高昂,KNX模塊產品價格相對較高,使得KNX技術主要應用于大型公共設施、國企和學校樓宇,大規模的推廣普及受到一定影響。隨著國內KNX廠商的不斷增加,研發能力不斷提高,性價比更高的KNX設備產品將越來越多,將對KNX總線技術的普及有更好的推動作用。
【參考文獻】
[1]中華人民共和國住房和城鄉建設部,中華人民共和國教育部.關于印發《高等學校校園建筑節能監管系統建設技術導則》及有關管理辦法的通知[EB/OL].http://www.mohurd.gov.cn/ kjjb/jstgzcfb/200911/t20091110_196722.html,2009-10-15.
[2]易丹,基于 KNX 總線的高校計算機房智能控制系統設計.
[3]安科瑞企業微電網設計與應用手冊2020.06版